Quartier : 74 €/m²
Contactez-nous Plan du produit
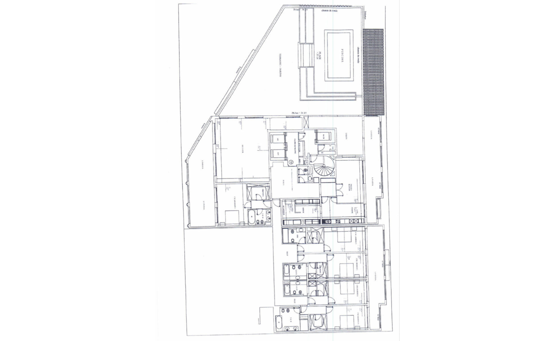
Situé dans la prestigieuse résidence Memmo Center à Fontvieille, cet appartement rare et exceptionnel de 7 pièces offre 702 m² d’espace total, des finitions luxueuses et une vue panoramique à couper le souffle sur la mer, le port et Cap d’Ail.
Située au 9e étage avec un accès privé direct depuis le palier de l’ascenseur, la propriété garantit une intimité et une tranquillité absolues tout en bénéficiant d’une proximité immédiate avec toutes les commodités.
L’appartement dispose d’un vaste hall d’entrée menant à un impressionnant salon double donnant sur une grande loggia orientée au sud avec une vue sur la mer à couper le souffle. Les espaces de vie s’étendent sur une vaste terrasse, comprenant une piscine privée, offrant un style de vie unique entre l’intérieur et l’extérieur.
Une cuisine indépendante entièrement équipée avec un espace de rangement généreux relie une salle à manger, toutes deux bénéficiant d’un accès à de grandes loggias couvertes. Une buanderie et des zones de service complètent cette partie de l’appartement.
La suite parentale bénéficie d’une salle de bain, d’un dressing et d’un accès direct à la loggia principale orientée au sud avec une vue exceptionnelle sur la mer. Quatre chambres supplémentaires, chacune avec sa propre salle de bain ou douche et un espace d’hygiène, s’ouvrent sur des terrasses ou des loggias.
Cette propriété luxueuse comprend également des toilettes pour invités, quatre places de parking (dont deux places doubles) et une cave.
La résidence propose des services haut de gamme incluant un service de conciergerie et réception 24h/24 et 7j/7, une salle de fitness et des équipements haut de gamme.
Avec une double exposition (face sud au port de Cap d’Ail et au nord), de grands volumes et des espaces extérieurs exceptionnels totalisant 336 m² de terrasses et de loggias, cet appartement représente une opportunité unique sur le marché locatif de Monaco.
Disponible à partir du 1er août 2026
A propos du quartier de Fontvieille: Fontvieille est le quartier le plus occidental de Monaco bordé par la commune de Cap d’ail. Ce quartier a été en grande partie construit sur la mer et comprend entre autre le Stade Louis, une marina et le centre commercial principal comprenant une grande surface alimentaire. Ce quartier offre aussi un large choix de restaurants, l’Héliport et l’Université de Monaco. Il est entouré de verdure avec la Roseraie de Monaco et de la mer, et jouxte la ville de Cap-D’Ail. Alors que l’immobilier de Fontvieille est principalement constitué de logements réservés aux Monégasques et aux titulaires de droits, il y a aussi des résidences prestigieuses telles que la Place du Bord de mer, les Terrasses du Port, le Centre Memmo ou l’Eden Star proposant des appartements de luxe.
Nous nous réjouissons de votre contact et nous nous tenons à votre disposition pour l’organisation d’une visite de ce bien
Vous n’avez pas trouvé de bien correspondant à vos besoins ? Contactez-nous afin que nous puissions vous proposer une sélection de biens en adéquation avec votre projet.
Quartier : 74 €/m²
Video
Plan du produit
Contactez-nous
Laissez-nous vous assister
Découvrez notre nouveau magazine
Ce document ne fait partie d'aucune offre ou contrat. Toutes mesures, surfaces et distances sont approximatives. Le descriptif et les plans ne sont donnés qu'à titre indicatif et leur exactitude n'est pas garantie. Les photographies ne montrent que certaines parties de la propriété. L'offre est valable sauf en cas de vente, retrait de vente, changement de prix ou d'autres conditions, sans préalable.








